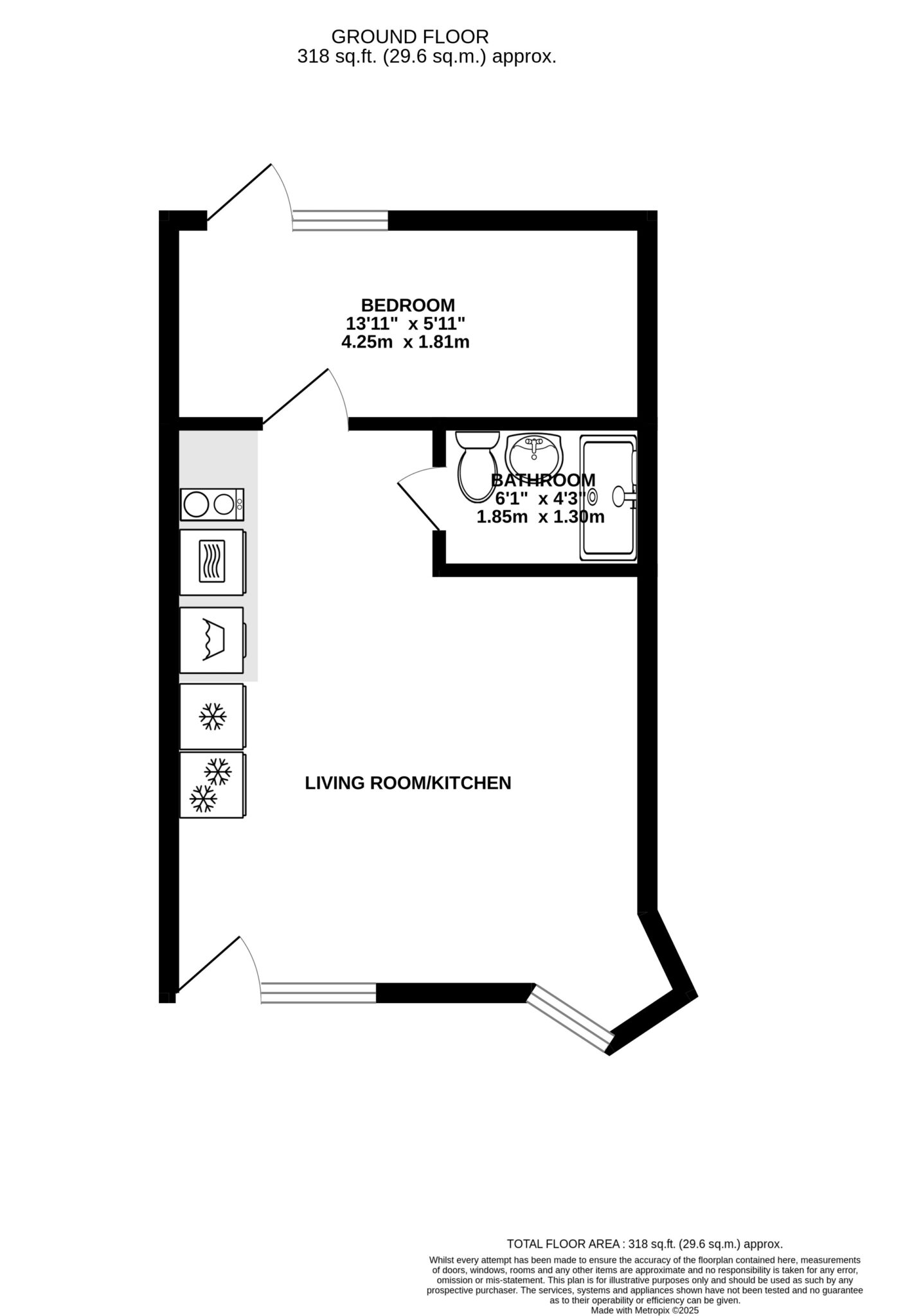
1 Bedroom
£ 1400 pcm
Clifton, Tyndall’s Park Road, BS8 1PG
Furnished
Ground floor
Available from: Now
- Parking space included for an additonal £100 per month
- Bills Included In Rent for additional £200 (Excluding Council Tax)
- Private outdoor patio
- Central location
- Within walking distance of Park Street & Clifton Triangle
- Stylishly furnished
- Ground floor
- Modern kitchen
Find Out More
Speak to our team now to arrange a viewing!
Clifton Team
We have a 1 bedroom apartment at Prince Rupert House, a bright, modern apartment set within beautifully landscaped outdoor spaces, creating a peaceful retreat just moments from the University of Bristol, Park Street and Clifton Triangle. The apartment is stylishly furnished throughout and sports a fitted kitchen with white goods and appliances. There is a generously sized, outdoor private patio and plenty of storage. A parking space can be included for an additional £100 per month. Tenancy length: 12 months | Council tax band: B | Security deposit: £1615.38 | Holding deposit: £323.07

